
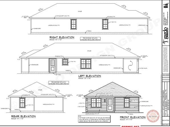
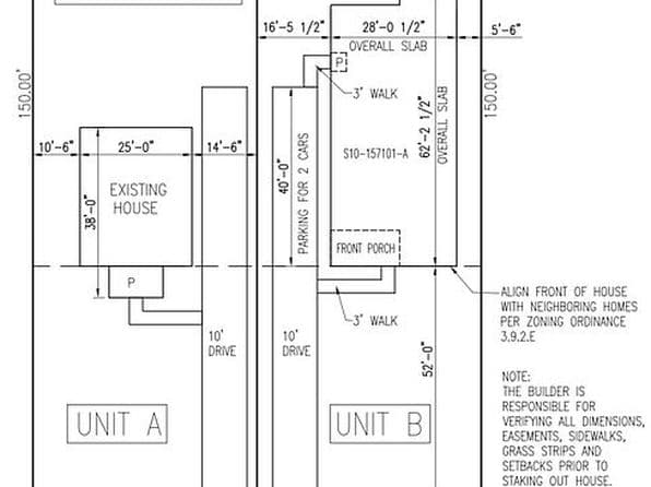
Prime builder/investor opportunity with plans already filed. 100′ x 150′ lot with existing structure and foundation. Approved site plan and architectural drawings on file for a two-unit redevelopment (Unit A & Unit B), including floor plans, elevations, and layout. Located in an area with prior planned development activity and strong upside. Seller also owns neighboring property. Rare chance to step into a project already in motion.


